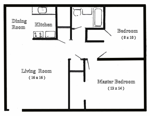
From $945 per Month
*800 Square Feet*
NOTE: Units entrances may very
Click the above image to download as a pdf file...
Download Adobe Reader
Two Bedroom Floor Plan Brochure
Two Bedroom Amenities
Own Private Entrance
Hot & Cold Water
Air Conditioning
Appliances
Cable TV Ready
Sound Proof Walls
Professional 24 Hour Service
Gas Heater
Gas Stove
Refrigerator
Laundry Rooms
in Common Area
─  ─  ─
Outside Amenities
Large Scenic Courtyard
School Bus Pick-up
Metro Park Vicinity
RTA Access
Corner 24 Hour Food-Mart
TWO BEDROOM